2021
Le nouveau bâtiment au 52 Wehntalerstrasse à Zurich-Unterstrass compte huit appartements de tailles variées. La maison intergénérationnelle W52 met l'accent sur l'écologie et la durabilité, avec des plafonds en TS3.

Le projet
La maison intergénérationnelle W52 favorise la cohabitation communautaire. L'attique offre un espace de cohabitation avec cuisine et un espace de coworking meublé. Les habitants adoptent un mode de vie écologique, durable et conscient, incluant des comportements sociaux responsables.
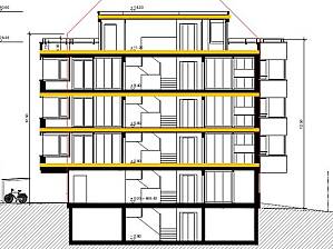
Le mode de construction
L'architecture en bois s'inspire de l'approche décrite ci-dessus, privilégiant une construction écologique et économe en énergie. Les matériaux sont choisis pour leur durabilité écologique et leur longévité. La technologie TS3, sans acier ni béton, est utilisée. Les plafonds TS3, peints en blanc lasuré, laissent les joints visibles.
Données de construction
Architecture
Wellmann Architekten AG, Zürich
Maîtrise d'œuvre
Privat
Ingénieur structure bois
Timbatec Holzbauingenieure (Schweiz) AG, Zürich
Ingénieur bois
BURKART AG trilegno, Auw
Ingénieur civil
Ruggli & Partner Bauingenieure, Zürich
Physique du bâtiment
Timbatec Holzbauingenieure (Schweiz) AG, Zürich
Direction des travaux
Wellmann Architekten AG, Zürich
CLT-Hersteller
Schilliger Holz AG, Küssnacht



