26. Aug 2021
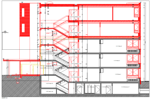
Das Schulhaus Feld in Richterswil wird für 7,6 Millionen Franken aufgestockt und saniert. Rund vier Millionen Franken davon werden in die zweigeschossige Aufstockung mit der TS3-Technologie investiert. So entstehen zusätzliche 1’542 Quadratmeter Fläche für Schulzimmer, Gruppenräume und ein Musikzimmer.
Die zwei zusätzlichen Etagen auf dem Schulhaus Feld lösen das Platzproblem in der Gemeinde Richterswil. Auf einer Fläche von 1’542 Quadratmetern entstehen mehrere Schulzimmer, Gruppenräume und ein Musikzimmer. Im Projekt eingeplant sind insgesamt 300 Quadratmeter Reserveflächen, die bei Bedarf in den Schulbetrieb integriert werden können. Damit trägt der Gemeinderat der längerfristigen Bevölkerungsentwicklung Richterswils Rechnung.
Grossformatplatten mit der TS3-Technologie
Auf dem bestehenden Dach des Schulhauses wurde eine 34 cm dicke Brettsperrholzplatte als Lastverteilplatte montiert. Sie ermöglicht eine flexible Raumaufteilung in der Aufstockung unabhängig von der darunterliegenden, bestehenden Tragstruktur. Darauf steht nun die zweigeschossige Aufstockung. Die TS3-Technologie findet Anwendung bei der Lastverteilplatte, der Geschossdecke und dem Dach der Aufstockung. Schilliger Holz AG lieferte dazu vorbehandelte Brettsperrholzplatten, die auf der Baustelle durch Fugenverguss mit einem Giessharz zu grossen homogenen Grossformatplatten verbunden wurden. Die Platten weisen je nach Geschoss eine Dicke zwischen 280 und 340 Millimeter auf und sind bis zu 13.5 Meter lang. Insgesamt wurden 540 Meter TS3-Fugen erstellt. Kürzlich hat Saxer Holzbau die Aufrichtearbeiten abgeschlossen.


Die Brettsperrholzplatten wurden im Werk vorbehandelt und mit Dicht- und Segmentbändern versehen (weisse und schwarze Bänder auf der Stirnseite). Nach der Positionierung wurden sie durch Fugenverguss miteinander verbunden. Auf der Deckenunterseite ist die Fuge schlussendlich kaum sichtbar. Unterzüge sind nicht mehr nötig.
Die TS3-Technologie
Die TS3-Technologie ist das Resultat von über zehn Jahren Forschung und Entwicklung der Timbatec Holzbauingenieure Schweiz AG zusammen mit der ETH Zürich und der Berner Fachhochschule in Biel. Das Verfahren verbindet Holzbauteile durch Fugenverguss und ohne Pressdruck stirnseitig miteinander. Zusammen mit dem eigens entwickelten Anschlussdetail beim Stützenkopf ermöglicht die TS3-Technologie zweiachsig tragende und punktgestützte Grossflächen aus Holz – ohne die bisher üblichen Unterzüge. Diese Grossflächen eignen sich ideal für Geschossdecken wie bei der Aufstockung der Schule Richterswil. Installationen können ohne Hindernisse eingebaut und den wechselnden Ansprüchen laufend angepasst werden und punktgestützte Decken kommen ohne tragende Wände aus. Das ermöglicht eine flexible Raumeinteilung und eine einfache Umnutzung der Räume.